Portushome度假屋,匈牙利
该栋度假小屋设计的首要任务是建立与环境的连接性,用当代设计元素阐释当地的自然生活环境。其次,加建于屋外的露台需与室内生活密切相关,使其成为居住生活的主要栖息地之一。
▼建筑外观

该建筑的形态设计和材料选择均充分尊重了场地的周围环境。设计师将传统材料运用与当代设计手法之中,裸露可见的承重结构形成富有韵律感的外立面,让建筑彰显与众不同之处。
▼裸露可见的承重结构形成富有韵律感的外立面

被强化的建筑结构进一步实现了度假屋的设计理念。以1.4米间隔成对出现的结构柱式形成了建筑的主立面。玻璃门窗沿立面铺设,赋予了阳光足量的穿行空间,让人的生活与自然环境充分接触。
▼玻璃门窗沿立面铺设,赋予了阳光足量的穿行空间

建筑采用自承重木结构,隔离墙放置在柱子之后。除外部露台不设隔墙外,其自身结构与建筑主体结构并无二异。建筑设计充分遵循业主的设计要求,同时严格遵守Balaton丘陵地区的建设标准。
▼露台是居住生活的主要空间之一

该住宅设计的主旨为:回归自然,用当代手法营造传统生活方式。住宅所有者亲自参与到建筑的概念设计阶段。建材方的紧密配合使得设计师的设计理念得以充分实现。
▼餐厅、客厅及厨房


▼采用当代设计手法

▼交通空间

▼卧室

该住宅设计充分考虑到建筑设计的基本元素,即住宅过渡空间,交通空间,室内及室外,场地环境,以及从形式与结构的角度理解人与自然关系。
▼夜景

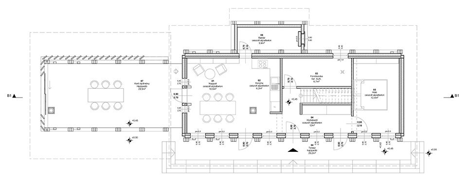
▼平面图

▼立面

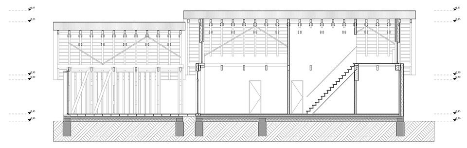
▼剖面





