度假木屋,印度 / Matra Architects
这所房子坐落在海拔2000米的Nanital地区的Satkol村,周围只有传统的乡村房屋,反映出当地农民的简朴生活。它是为自用而建的度假屋。
▼项目周边环境一览

这座房子的设计考虑到了其周围喜马拉雅山脉白雪皑皑的自然景色,同时深深扎根于现有的未被破坏的梯田。这两个压倒性的景观使得建筑被放置在梯田的最低级,与周围的大环境相融合。
▼建筑被放置在梯田的最低级,与周围的大环境相融合

▼住宅外观一览

▼住宅外立面上对应景观大大小小开了很多方窗

空间由三个不同的层次组成,每一个都大约占用14.5米x3.6 m的自然地形,外立面的连续横窗使得周围的果园和Almora镇的壮观景色一览无余。这个开窗像是一个裂缝,成为现场挖出的裸露的干石墙基地和当地名为thun木材包覆之间的过渡。

▼室内空间由三个不同的层次组成

▼外立面的连续横窗使得周围的果园和Almora镇的壮观景色一览无余

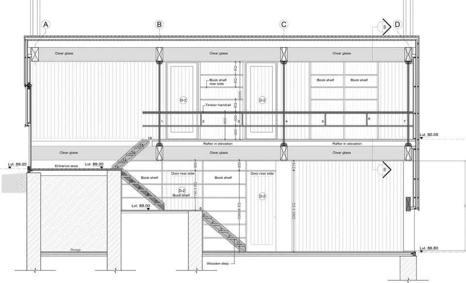
4个14.50 m跨度的sal木框架由多个胶合木板和薄钢拉杆组成,支撑着整个用木材覆盖的屋顶、隔热的建筑外壳、整个木质的夹层,并塑造了标志性的双层玻璃天窗。整个房子被悬挂在这些坚固的桁架框架中,没有任何中间柱的支撑,使得一种不受干扰的地形轮廓流进入静谧的松木镶板的室内空间。精心雕琢的方形窗户,朝向各个方向,让使用者得以禅观各个山峰和不断变化的云。
▼从高处能看到室内空间由木框架支撑,形成了无柱空间

▼天窗为卧室引入阳光

▼晚间的住宅

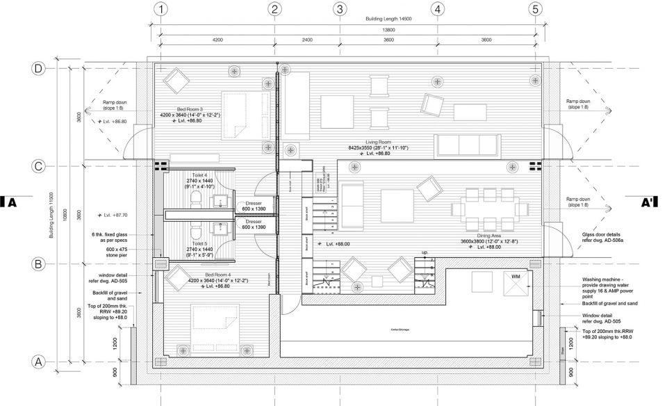
▼首层平面

▼二层平面

▼立面


▼剖面






